型號:VSSJAFC(CC2F)型
規格:DN65mm-DN3200mm
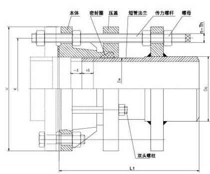
VSSJAFC(CC2F)型可拆式雙法蘭傳力接頭簡單介紹: VSSFAF(CC2F)型可拆式雙法蘭傳力接頭:安裝在管道上后,根據所需的伸縮的伸縮距離進行限位,擰緊螺母,彈性密封圈在螺母壓蓋的作用下依靠相互斜度,緊壓在管子外圈起密封和連接作用,主要和管道閥門連接不但起到管道補償作用,更方便了閥門的維修及更換。
VSSJAFC(CC2F)型可拆式雙法蘭傳力接頭結構示意圖:

碳鋼或不銹鋼的傳力接頭(補償接頭),公稱通經≤400mm的,其限位短管、短管法蘭的筒體宜用無縫鋼管,質量應符合GB/T8168或GB/T14976的要求,公稱通經≥450mm的,其上述筒體宜用鋼板卷筒焊接制造,焊管的質量應符合GB/T9711.2的規定。
球墨鑄鐵補償接頭(傳力接頭)由限位短管,短管法蘭的筒體質量應符合ISO2531的要求。
補償接頭(傳力接頭)用碳鋼固件應熱鍍鋅處理,涂層厚度要求按GB/T13912的規定
補償接頭(傳力接頭)的零件表面不應有裂紋、結疤、折疊、分層等缺陷,并不得有擦傷、溝槽或碰撞形成的明顯凹陷。
2、限位螺釘:船用壓蓋松套伸縮接頭應設限位螺釘。
3、表面防護:用于海水等腐蝕介質的碳鋼、球墨鑄鐵補償接頭,器表面應進行涂塑或熱鍍鋅或鎳磷涂層等特涂處理,其要求應分別符合GB/T13912 GB/T13913 CJ/T120的規定,用于滑油等介質的碳鋼、球墨鑄鐵補償接頭,器表面宜用環氧涂層或在其表面涂防銹漆。
4、強度:補償接頭本體的強度應能承受1.5倍公稱壓力的壓力,保壓5min,不得有滲漏和明顯的塑性變形。
5、密封性:補償接頭密封副應能承受1.25倍公稱壓力的壓力,保壓5min,不得有泄漏
6、可撓量和偏心量
A類補償接頭(松套伸縮接頭)在下表規定的可撓量、偏心量和1.25倍公稱壓力的壓力下,不得有泄漏。
7、衛生
用于輸送生活飲用水的補償接頭的材質衛生要求應符合GB/T17219的規定。
8、防火
用于消防管路的補償接頭應符合有關船級社規范規定的耐高溫防火要求。
VSSJAFC型可拆式雙法蘭傳力接頭實驗方法: 材料檢查:補償接頭主要零件材料按材質單驗收
外觀檢查:補償接頭外觀檢驗在日光或燈光照明下用目測法檢驗(可用5倍放大鏡),涂層厚度用測厚儀檢驗。結果應符合5.2.5.3和5.4要求。
尺寸檢驗:用精度符合規定極限偏差要求的通用量具檢查。結果符合4.3要求
密封性實驗:將補償接頭本體安裝在試驗臺上,實驗壓力為1.25倍公稱壓力,保壓5min,實驗介質為自來水,實驗用壓力表的精度不低于1.5級,表的大量程為1.5-2.0倍的實驗壓力,結果應符合5.6要求。
強度實驗:密封性實驗完成后,加大實驗壓力至1.5倍公稱壓力,保壓5min.結果應符合5.5要求。
可撓量實驗:將松套伸縮接頭安裝在撓曲試驗臺上,兩端連接管調至同一軸線上,將一端端部頂至表規定的可撓量處,實驗壓力為1.25倍公稱壓力,保壓5min,結果應符合5.7要求。
偏心量實驗:將松套伸縮接頭安裝在偏心試驗臺上,兩端連接管調至同一軸線上,將一端連接管呀至表規定的偏心量處,實驗壓力為1.25倍公稱壓力,保壓5min.結果應符合5.7要求。
|
公稱通徑DN |
管子外徑
Dw
|
外形尺寸 |
法 蘭 連 接 尺 寸 |
||||||||
|
L |
△L |
0.6MPa |
1.0MPa |
||||||||
|
D |
D1 |
n-Th |
b |
D |
D1 |
n-Th |
b |
||||
|
65 |
76 |
200
|
40
|
160
|
130
|
4-M12
|
16
|
185
|
145
|
4-M16
|
20
|
|
80 |
89
|
190
|
150
|
4-M16
|
18
|
200
|
160
|
8-M16
|
22
|
||
|
100 |
114 |
210 |
170 |
220 |
180 |
24 |
|||||
|
125 |
140 |
240 |
200 |
8-M16 |
20 |
250 |
210 |
26 |
|||
|
150 |
168 |
265 |
225 |
285 |
240 |
8-M20 |
|||||
|
200 |
219 |
320 |
280 |
22 |
340 |
295 |
28 |
||||
|
250 |
273 |
375 |
335 |
12-M16 |
24 |
395 |
350 |
12-M20 |
|||
|
300 |
325 |
220 |
50 |
440 |
395 |
12-M20 |
24 |
445 |
400 |
12-M20 |
28 |
|
350 |
377
|
490
|
445
|
26
|
505
|
460
|
16-M20
|
30
|
|||
|
400 |
426 |
540 |
495 |
16-M20 |
28 |
565 |
515 |
16-M24 |
32 |
||
|
450 |
480 |
595 |
550 |
615 |
565 |
20-M24 |
32 |
||||
|
500 |
530 |
645 |
600 |
20-M20 |
30 |
670 |
620 |
34 |
|||
|
600 |
630 |
240 |
755 |
705 |
20-M24 |
780 |
725 |
20-M27 |
36 |
||
|
700 |
720 |
860 |
810 |
24-M24 |
32 |
895 |
840 |
24-M27 |
40 |
||
|
800 |
820 |
350 |
60 |
975 |
920 |
24-M27 |
34 |
1015 |
950 |
24-M30 |
44 |
|
900 |
920 |
1075 |
1020 |
24-M27 |
36 |
1115 |
1050 |
28-M30 |
46 |
||
|
1000 |
1020 |
1175 |
1120 |
28-M27 |
1230 |
1160 |
28-M33 |
50 |
|||
|
1200 |
1220 |
370 |
1405 |
1340 |
32-M30 |
40 |
1455 |
1380 |
32-M36 |
56 |
|
|
1400 |
1420 |
1630 |
1560 |
36-M33 |
44 |
1675 |
1590 |
36-M39 |
62 |
||
|
1600 |
1620 |
380 |
1830 |
1760 |
40-M33 |
48 |
1915 |
1820 |
40-M4 |
68 |
|
|
1800 |
1820 |
2045 |
1970 |
44-M36 |
50 |
2115 |
2020 |
44-M45 |
70 |
||
|
2000 |
2020 |
400 |
2265 |
2180 |
48-M39 |
54 |
2325 |
2230 |
48-M45 |
74 |
|
|
2200 |
2220 |
2475 |
2390 |
52-M39 |
60 |
2550 |
2440 |
52-M52 |
80 |
||
|
2400 |
2420 |
2685 |
2600 |
56-M39 |
62 |
2760 |
2650 |
56-M52 |
82 |
||
|
2600 |
2620 |
450 |
80 |
2905 |
2810 |
60-M45 |
64 |
2960 |
2850 |
60-M52 |
88 |
|
2800 |
2820 |
3115 |
3020 |
64-M45 |
68 |
3480 |
3070 |
64-M52 |
94 |
||
|
3000 |
3020 |
3315 |
3220 |
68-M45 |
70 |
3405 |
3290 |
68-M56 |
100 |
||
|
3200 |
3220 |
3525 |
3430 |
72-M45 |
76 |
|
|||||






